• Werk
  • Publicaties
  • Contact
WimHeylen
  • Werk
  • Publicaties
  • Contact

Woning SC

Een verbouwing van een half-open woning.

2020 | 2022

IMG_7231b.jpg
IMG_7246b.jpg
IMG_7271b.jpg
IMG_7257c.jpg
IMG_7345b.jpg
IMG_7347b.jpg
IMG_7350b.jpg
08.jpg
IMG_7315b.jpg
IMG_7328b.jpg
IMG_7496b.jpg
IMG_7501b.jpg
IMG_7526b.jpg
J.jpg
K.jpg
floorplan 0.jpg
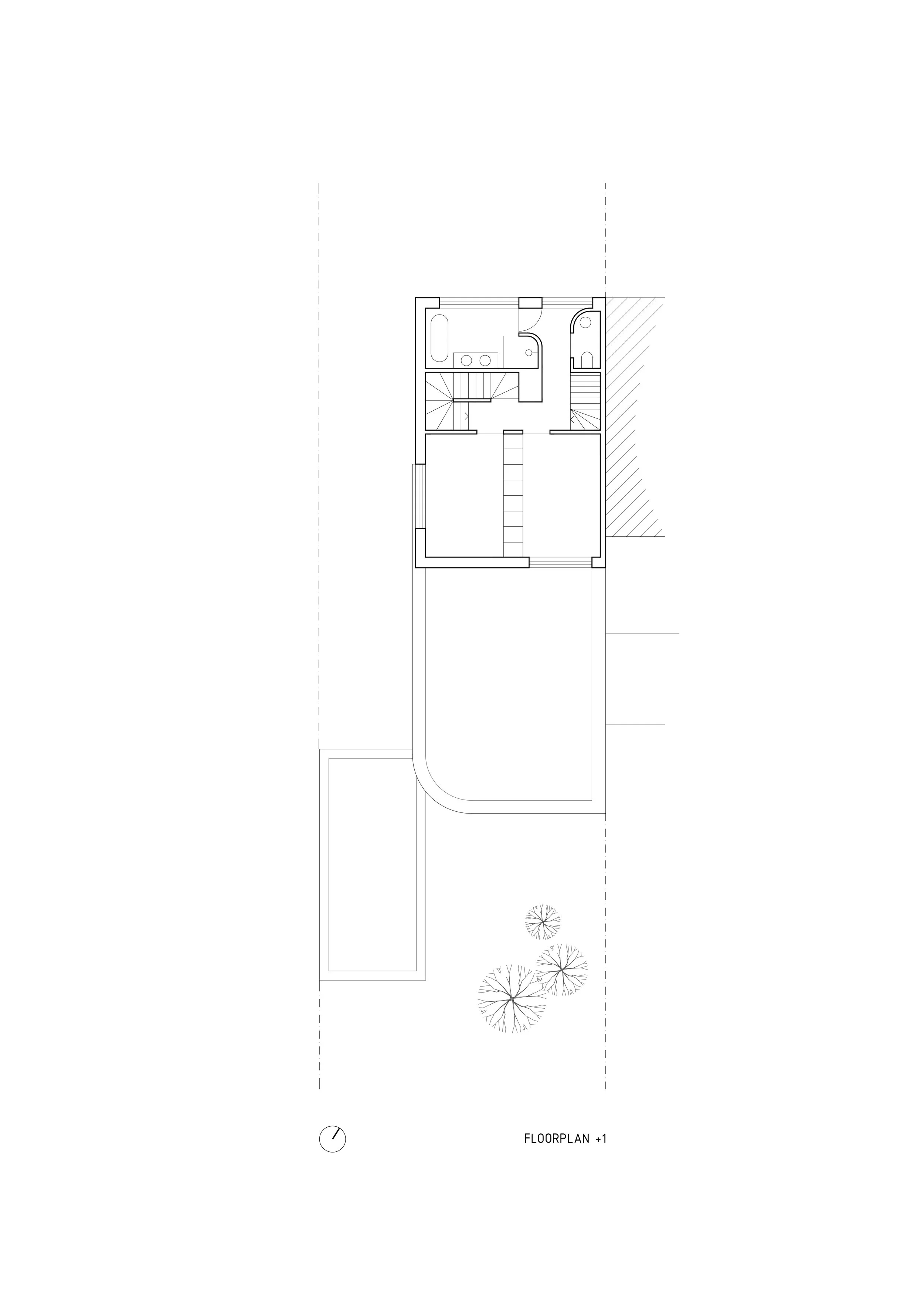
floorplan 1.jpg
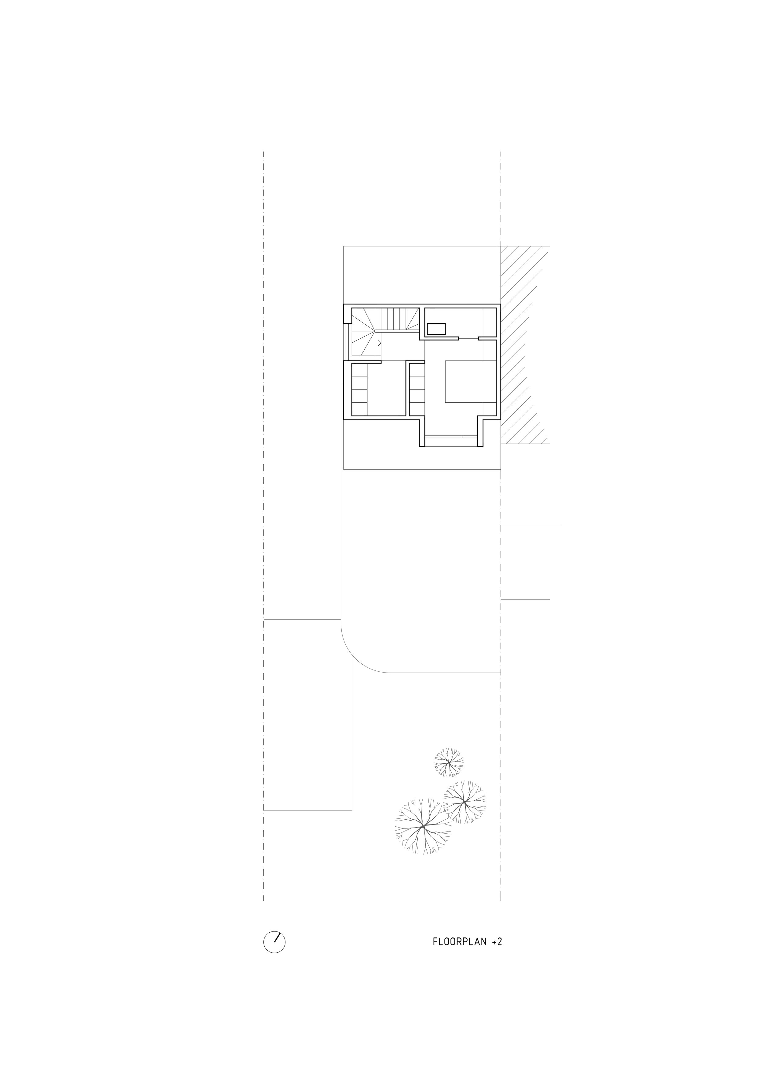
floorplan 2.jpg
2010 schema.jpg